2. 中国电建集团 华东勘测设计研究院有限公司,浙江 杭州 310014;
3. 中建三局集团有限公司西南分公司,四川 成都 610041
2. Huadong Eng. Corp. Ltd., PowerChina, Hangzhou 310014, China;
3. Southwest Branch, China Construction Third Eng. Bureau, Chengdu 610041, China
随着中国基础设施建设的不断深入,新建工程近接施工对既有建筑可能产生影响的情况日益增多。其中,深厚软土区域新建工程下穿既有桥梁是一类比较典型而常见的相互影响形式。附加荷载将引起高压缩性地基土的变形及应力调整和传递,从水平变形和桩基轴力(负摩阻力)两个方面,对既有桥梁桩基产生不利影响。
对于摩擦桩,桩周土在附加荷载作用下产生相对于桩身的沉降,下拽力引发桩基沉降[1]。Little[2]通过3×3群桩基础现场试验,构建了考虑群桩效应的负摩阻力作用形式;王长丹等[3]通过离心模型试验,研究附加荷载条件下单桩负摩阻力分布及中性点变化规律。《建筑地基基础设计规范》(GB50007—2011)[4]等相关国家及行业技术规范提供了桩基负摩阻力计算方法,并结合不同土性给出了经验参数,但对于复杂的桩基形式及新旧工程存在相互影响时难以进一步提供准确的计算方法。
当附加荷载加载方式或施工工序较复杂时,在对桩基可能造成的不利影响进行分析时,还须充分考虑桩基水平位移问题。李仁平等[5]以沿海地区某桥梁工程为例,提出能够考虑桩土体系参数及侧向土压力沿深度任意变化情况的方法,针对附加荷载对单桩水平变形的影响进行了分析和预测;李忠诚等[6]对荷载传递公式进行了推导和解析,研究附加荷载引起土体运动对邻近桩基侧向变形的影响,并通过一个单桩工程案例,验证了该方法的实用效果。
针对越来越多新建工程与既有工程存在相互影响的问题,介于工况的复杂性,单纯依照行业技术规范或理论解析方法开展工程影响评价分析存在一定的局限性,计算机辅助工程(CAE)技术逐渐成为一种不可或缺的技术支撑手段。
吴琼[7]以3维有限元为技术手段,研究了侧向荷载作用对桩基弯矩、变形影响分布等的作用规律;考虑到附加荷载作用形式的复杂性,李志伟[8]通过进行适当简化,采用有限元模拟了单侧及双侧堆载对临近桩基影响的差异;彭龙仕等[9]着重考虑地基特性及堆载方式,研究不同地基处理方法对近接既有桩基的影响;江洎洧等[10]以某围堤填筑工程穿越大型跨海大桥为工程背景,结合实际地质条件和施工组织设计方案,开展了附加荷载对摩擦型群桩基础桩基负摩阻力影响的数值模拟,评价了工程影响程度及范围,并提出现场监测方案建议,取得了较好的工程应用效果;冯君等[11]以软土地区高承台桥桩为算例,开展了桩基横向承载的群桩效应研究,分析了桩基–承台在不同约束条件下,横向承载机理的差异。王起[12]、赵晓波[13]、乔京生[14]、黄钰鑫[15]等采用有限元手段,分别从不同荷载作用形式和地基处理方法等角度,分析附加荷载对桩基影响机制,取得了较好的研究效果。
综上,由于评价新(建)旧(既有)结构物相互影响的标准较匮乏,只有通过对场地工程地质特性、既有结构物地基基础形式、附加荷载作用形式及新建工程设计方案等的系统分析,才可较准确地评价工程影响程度。数值仿真作为分析复杂工程问题最为有效的方法之一,可从精细化和动态化的角度开展数值模拟,为实际工程提供必要支撑。
本文以某软基区海堤下穿既有复杂结构高速公路桥为工程案例,采用3维有限差分数值模拟手段,考虑动态化的施工过程、加固工程措施及地基处理方案,精细化模拟新建工程实施对既有桥梁桩基的影响。
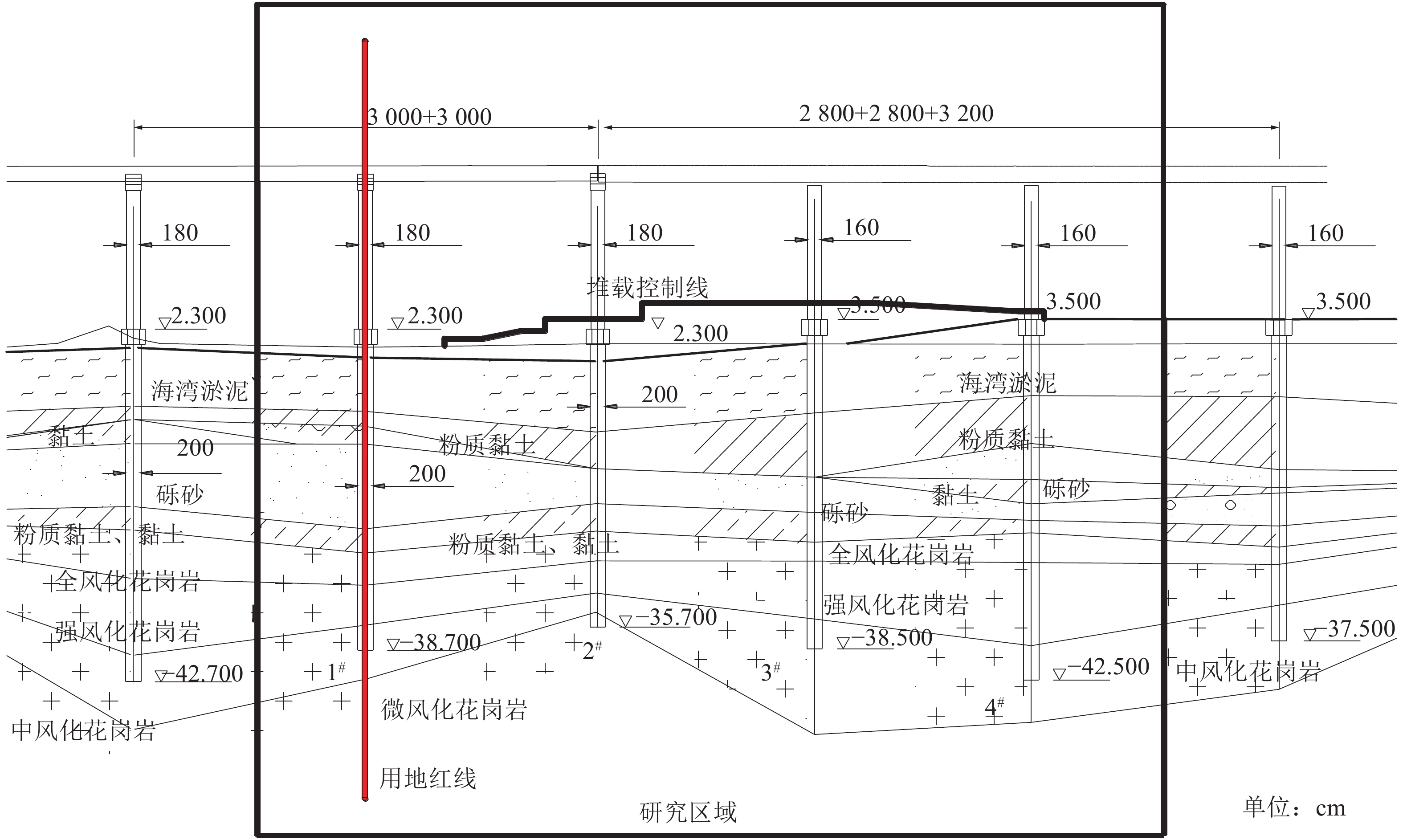
1 工程背景及实施方案某海堤填筑需从既有沿江公路桥下呈正交方向穿过,填土平面范围较大,最大填土高度约9 m。图1为海堤下穿高速桥区间断面设计及工程地质剖面图,由图1可知:
![]() |
| 图1 海堤穿桥区间断面设计及工程地质剖面图 Fig. 1 Designing and engineering geological section in the interval of Embankment undercross bridge |
1)场区表层分布的流塑~软塑状海相淤泥软土厚12~14 m,压缩性较高;海堤填筑附加荷载作用下,深厚软土层将产生较大的沉降和侧向变形。
2)桥梁桩基底部嵌入花岗岩,作用形式为端承型桩,从负摩阻力影响角度,附加荷载对桩基的影响主要体现在基桩轴力的增加,对桩基沉降的影响较小。
3)桥梁为单排桩形式,并且左右两翼分别设有上/下行匝道,附加荷载可能引起的桩基水平变形(沿桥向和横桥向)应该作为确保工程安全的控制性因素。
针对以上特点,加固工程措施除须对软土层做必要的地基处理外,还应重点考虑降低附加荷载对桩基水平方向的影响。考虑到桥下施工空间狭小,确定了隔离+传导承接的技术思想,通过CAD+CAE动态设计优化后,确定了双排钻孔灌注桩+框架梁+高压旋喷处理软基的加固方案。方案平面布置如图2所示,图3直观地展示了加固结构与既有桥桩的空间相互关系。
![]() |
| 图2 加固方案平面布置图 Fig. 2 Plane layout of reinforcement scheme |
![]() |
| 图3 支护结构与既有桥梁桩基空间位置关系 Fig. 3 Spatial relationship between supporting structure and existed bridge piles |
方案说明如下:
1)在1#和2#桥墩中间处打设两排桩径1.2 m、桩间距1.2 m的钻孔灌注桩;考虑桥下净空施工因素及桩端应尽可能置于相对稳定的地层这两个因素,设计桩底位于–20.0 m处砾砂层,顶部采用120 cm×80 cm冠梁连接,双排桩间距5 m,横桥向每隔3 m采用80 cm×80 cm连梁连接,顶部与承台平齐,双排桩中间区域充填大块石,提高临空侧支挡结构的抗倾覆性。
2)大桥两侧的分离式匝道结构相对单薄,对于2#和3#桥墩采用“隔离”的加固思路。桩径1.0 m、桩间距1.0 m的双排灌注桩+连系梁支护结构将桥墩合围,结构具有较高刚度和整体性。周边侧压转化为连系梁和冠梁轴力,竖向则具有一定自由度,有效隔离桥墩和填筑体,发挥类似套筒的效果。双排桩中间区域填充碎石,与外围堆积体同步抬升,有助于提高支护体系的力学平衡。综合考虑这两组桥墩四周附加荷载的对称性及匝道上下坡桥下净空减小的因素,桩底置于–13.0 m粉质黏土层中。
3)图2中其余部位按桩径0.7 m、间距1.2 m布置高压旋喷桩对淤泥层整体处理,以提高地基刚度,降低压缩性,改善侧压力传递模式。
综上,鉴于既有桥梁结构的复杂性、加固方案的综合性和空间的复杂性,完全依照现有的桩基技术规范方法进行工程影响评价难度很大。对此,在确定以上优化方案的过程中,引入3维数值模拟方法,用于考虑动态施工过程中工程结构物间的相互关系。
2 3D有限差分数值模拟及其流程工程实例的CAE部分采用岩土工程领域广泛接受的有限差分软件FLAC3D进行计算,程序可靠性强,结果收敛性稳定。加固方案优化确定的过程,实际上也是设计和计算动态校核和反复调整的过程;按优化后的加固方案,对新旧结构之间相互影响机理进行计算和分析。
2.1 数值计算模型通过初步计算确定工程影响范围,以此确定3维数值模型的范围,并在此基础上开展填筑对桥梁结构影响的分析。
沿桥向:图1粗线框范围,共计4跨范围120 m;横桥向:两侧分别外延50 m;垂直向:底部微风化花岗厚度不低于8 m。
整体数值模型见图4(a)。
![]() |
| 图4 3维有限差分数值模型 Fig. 4 3D dimensional numerical mode |
模型考虑了2#桥墩处桥面分缝及两侧上/下行匝道,共包括119 973个节点和108 840个单元,图4(b)为桥桩编号。
参照设计流程,数值模拟包括以下步骤:
1)对模型中除上部外5个边界的法向进行位移约束,考虑岩土体/结构自重及按《公路桥涵设计通用规范》 [16]确定的交通荷载,计算初始应力场,并将位移清零,以此作为本文工程影响的初始状态。
2)支护结构施工:激活并计算结构单元施工后的地基及桥梁结构应力变形。
3)回填土料:薄层逐步回填至1.0 m。
4)地基处理:复合地基材料参数替换。
5)海堤填筑:逐级薄层对称均匀填筑,计算地基土和桥梁结构的应力及变形增量,同时对支护结构的受力模式进行分析。
2.2 计算参数说明据地勘试验成果,列出图1中各地层单元及混凝土(标号C30)的计算参数(表1)。岩土及复合地基单元采用Mohr–Coulomb模型模拟,混凝土结构采用线弹性模型模拟。
| 表1 各地层单元物理力学参数 Tab. 1 Physico-mechanical parameters for each group element |
![]() |
2.3 接触面模型及参数确定
桩–土相互作用通过桩–土界面接触面及两侧实体单元的力学耦合作用体反映,在所有桩–土界面(含填土与桩和承台界面)设置无厚度接触面单元,其空间分布见图3。
有限差分计算中,接触是一类特殊不连续关系。容许力从接触面一侧传递到另一侧;从变形角度,接触状态分为黏结、张开和滑动3种关系。
考虑界面摩擦特性时,界面摩擦力与接触力的大小、界面光滑状态、材料特性和接触对的相对刚度密切相关。采用应用广泛的Mohr–Coulomb接触模型算法比较符合桩–土界面的变形破坏模式,主要通过设置接触面的摩擦强度模拟摩擦行为,按照接触面两侧的单元尺寸,设置法向和切向模量,以保证接触面两侧不刺入且收敛速率适宜为准[17]。
参照表1及《建筑桩基技术规范》[18]综合选取接触面参数,如表2所示。作为端承桩,规范建议取区间下限。但从强化桩–土相互作用的角度,对比实际土层内摩擦角
| 表2 桩–土摩擦系数取值及说明 Tab. 2 Values and description of pile–soil friction coefficient |
![]() |
2.4 支护结构及复合地基的处理
保护方案采用钻孔灌注桩+连系梁支护结构体系,采用高压旋喷处理表层软土。
对于灌注桩和冠(连系)梁,参照第1节所述几何尺寸及表1所列物理力学参数,基于FLAC3D的Pile单元和Beam单元进行模拟。海堤填筑区域,除支护结构合围的范围外,采用高压旋喷桩对淤泥、淤泥质黏土等软土层进行地基处理。
高压旋喷桩从+1.0 m高程打设至–9.5 m高程,穿越填土层、淤泥层、粉质黏土层3个土层,面积置换率为26.7%。按照《建筑地基处理规范》[19]的计算方法,参照周边以往相似工程,数值计算中复合地基压缩模量取24 MPa。
3 桩基变形及内力分析图5为桥桩及桥柱结构的三向变形等值线图。
![]() |
| 图5 填筑后桩基(柱)结构变形等值线图 Fig. 5 Displacement contour of pile structure after filling |
由图5可知:
1)从沿桥向水平变形来看,呈沿堆载中心线向两侧的温和挠曲变形;朝海域和陆域方向最大变形分别位于1#墩和3#墩桩基中部,最大变形量分别为8.0和4.7 mm。
2)从横桥向水平变形来看,两侧支护结构外堆载预压对桥梁结构,特别是对两侧匝道桩柱结构有一定影响,呈向桥梁中轴线的温和挠曲变形,最大变形位于3#墩两侧匝道外侧桩基中上部,最大变形量为4.9 mm。
3)桩基均为嵌岩桩,基岩为花岗岩,桩基沉降量可视为附加荷载引起的桩身压缩,最大垂向变形2.4 mm。
4)综合3个方向的变形,图5(d)为放大300倍时桩基变形形态。由图5(d)可知,桩基呈现温和挠曲,变形主要发生在1#~3#桥墩,4#桥墩已基本不受填筑影响。
对于桩基水平变形的评价标准,参照《建筑桩基技术规范》[18]的规定:桩顶(承台)水平位移允许值,当以位移控制时,可取10 mm;另参照《公路桥涵地基与基础设计规范》[20] 的规定:基础在地面处水平变形大于6 mm时,地基比例系数要折减。故以桩基地面处水平变形不超过6 mm为标准进行评判。
表3统计了各桥墩地表处桩基水平变形。
| 表3 填筑完成各桥墩水平变形 Tab. 3 Horizontal deformation of piles after filling |
![]() |
由表3可知,地表水平变形最大的桩基位于1#桥墩,最大变形量4.38 mm,能够较好地满足规范要求。
附加荷载通过桩–土相互作用,与桩结构产生荷载传递。作为嵌岩桩,相互作用影响主要体现在:沿桩身方向土相对桩体沉降,负摩阻力对基桩施以下拉荷载,产生轴力增量;水平变形使得基桩产生附加弯矩。以下对基桩轴力和附加弯矩做进一步分析。
根据图5(c)垂直变形分布特征,选取桩1–4、2–4、3–1、3–4、3–8和4–4等6根具有代表性的基桩进行轴力增量统计,工程前后轴力最大值及增幅如表4所示;图6为选取桩2–4和桩3–8绘制的轴力沿桩身分布曲线。
| 表4 典型桩基轴力极值及变幅统计 Tab. 4 Statistics of extreme axial force and variation on typical piles |
![]() |
![]() |
| 图6 填筑前后典型基桩轴力分布曲线 Fig. 6 Axial force distribution curves of typical piles before and after filling |
1)填筑使各桩基轴力绝对量呈增加趋势,但从轴力分布曲线来看,并未改变桩轴力分布规律,轴力极值仍处于中风化花岗岩层位附近,表明桩基仍呈现较好的受压状态。
2)轴力增量主要影响区为2#和3#墩,增量最大值2.7 MN,出现在桩2–4和桩3–1;最大增幅为13.83%,出现在桩3–8。4#墩桩基轴力基本不受附加荷载影响,轴力增加幅度均小于4%。
3)桩3–1和桩3–8作为匝道下的桩基,其整体结构比主体桥梁单薄,故受到附加荷载的影响大于主体桥梁下的桩基结构。
4)结合桥梁的设计情况分析轴力增量的影响。根据对原设计资料的分析,作为沿海桥梁,特别是上覆厚层软土层,其控制条件为水平承载力,因此基桩尺寸较大,为直径2 m钻孔灌注桩。轴力增幅看似较大,但将附加荷载换算为结构应力,桩身压应力增量最大仅为860 kPa,基桩最大压应力约10 MPa,完全满足混凝土材料抗压强度要求。
5)在加固方案优化阶段,采用离心物理试验方法对单桩受附加荷载前后轴力变化进行了测试,按相同地层结构制备模型,考虑钻孔灌注桩的支护效果,并施加相似当量荷载。测得轴力增幅最大约15%,分布规律与数值计算结果亦基本一致,互为验证。
基桩挠曲会引起桩体结构弯矩的增加,根据桩基变形成果,可将桩体单元节点变形分量导出,通过材料力学原理,计算桩基弯矩沿桩身方向的分布规律。通过获取桩体外侧节点的变形增量,进而由单元尺寸求得应变值,计算得到桩体各横截面上的弯矩。根据图5(a)、(b)变形分布,选取桩1–4、2–1,2–4、2–8,3–1、3–4、3–8和4–4等8根典型基桩进行附加弯矩分析,表5统计了各基桩弯矩增量。
| 表5 典型桩基附加弯矩增量极值统计 Tab. 5 Statistics for extreme additional bending moment of typical piles |
![]() |
由表5可知:
1)附加荷载引起桩基出现水平变形,进而引起桩基弯矩增加,符合附加荷载作用后,桩基应力变形协调受力机理。
2)附加荷载对基桩弯矩的影响主要集中在1#~3#墩,弯矩增量最大值947 kN·m,位于桩3–4,主要由于:3#桥墩位于影响核心区,且距海堤中心轴线较大,相比2#墩,荷载对3#墩作用不对称;1#墩由于外侧双排桩的保护,弯矩增量控制较好;与轴力影响规律类似,4#墩距离核心影响区较远,受附加荷载作用的影响较小。
3)基桩所受附加弯矩对应的偏心距约4.5 cm,与2.0 m直径的基桩几何尺寸相比,偏心距很小;另外,从拉应力量值来看,基桩最大拉应力0.51 MPa,对混凝土结构受力状态的影响可控。
4 支护结构受力模式分析作为加固方案的主体构成部分,需对钻孔灌注桩+冠梁连系梁框架结构受力模式是否发挥了必要作用进行检验。图7为框架结构的受力状态。由图7可知:
![]() |
| 图7 钻孔灌注桩+框架梁支护结构内力分布 Fig. 7 Structural internal force distribution of bored pile & frame connection beam |
1)支护桩能够很好地承担填筑引起的沿桥向水平推力,在此方向钻孔灌注桩所受最大弯矩值My为0.44 MN·m。
2)横桥向桩结构主要为桥梁结构分担两侧附加荷载,其在缓解外围堆载预压对穿桥区间桥桩的影响发挥了作用,在此方向上的钻孔灌注桩最大弯矩Mz为0.47 MN·m。
根据以上分析可知:支护结构对于抵抗和承接附加荷载对桥梁结构的影响起到了显著作用;此外,靠陆域一侧,将2#和3#墩合围的两组支护结构还产生了约40 mm的沉降和最大15.4 mm的水平变形,使其在外围附加填筑体和内部桥墩之间,发挥了类似套管的作用,起到了较好的“隔离”效果。
5 结 论以某软基区海堤填筑下穿既有复杂结构高速公路桥为工程案例,充分考虑实际地层空间分布特征,在加固方案的确定和优化过程中,采用CAD+3维有限差分数值模拟CAE动态校核,并反复调整思路,按照设计施工组织流程精细化模拟海堤填筑对既有桥梁桩基的影响,得到以下结论:
1)优化确定了钻孔灌注桩+框架梁+高压旋喷法的加固方案,将附加荷载对既有桥梁桩基的影响控制在允许范围之内,基于偏安全的计算参数进行计算,工后桩顶水平位移最大值4.38 mm,满足规范要求,基桩轴力和附加弯矩均较好地控制在允许范围之内。
2)钻孔灌注桩+框架梁+高压旋喷法的防护体系受力状态及机理达到了加固方案设计目标,结构整体性和协同受力性良好。表层软土旋喷处理可提高地基刚度、降低压缩性,并有效改善侧压力传递模式;框架梁较好地承接了外围两侧预压附加荷载的挤压,在框架中形成了较充分的压力拱受力模式,框架梁最大轴力1.28 MN;水平方向,大面积填筑所施加的附加荷载转化为钻孔灌注桩弯矩,钻孔灌注桩在沿桥向和横桥向的最大弯矩分别为0.44和0.47 MN·m。
3)框架体系将中部核心影响区2#和3#墩合围,通过结构自身的变形有效隔离了外围填筑对内部桥墩的直接影响,发挥了类似套管的“隔离”作用。
| [1] |
Terzaghi K,Peck R B.Soil mechanics in engineering practice[M].New York:John Wiley & Sons,1948:345–367.
|
| [2] |
Little J A.Downdrag on piles:Rview and recent experimentation[C]//Proceeding of settlement 94:Vertical and horizontal deformation of foundation and embankment,ASCE.New York:Geotechnical special publication,1994:1805–1826.
|
| [3] |
Wang Changdan,Wang Xu,Zhou Shunhua,et al. Centrifugal model tests on self-weight collapsible loess and negative skin friction of pile foundations[J]. Chinese Journal of Rock mechanics and Engineering, 2011, 29(Supp1): 3101-3107. [王长丹,王旭,周顺华,等. 自重湿陷性黄土与单桩负摩阻力离心模型试验[J]. 岩石力学与工程学报, 2011, 29(增刊1): 3101-3107.] |
| [4] |
中华人民共和国住房和城乡建设部.建筑地基基础设计规范:GB50007—2011[S].北京:中国建筑工业出版社,2011.
|
| [5] |
Li Renping,Chen Yunmin,Chen Renpeng. Analysis of approach embankment effect for the piled pier of bridge constructed on soft clay[J]. China Journal of Highway and Transport, 2001, 14(3): 73-77. [李仁平,陈云敏,陈仁朋. 软基中桥头路基对邻近桩基的影响分析[J]. 中国公路学报, 2001, 14(3): 73-77. DOI:10.19721/j.cnki.1001-7372.2001.03.016] |
| [6] |
Li Zhongcheng,Liang Zhirong. Calculation model and numerical analysis of passive piles subjected to adjacent surcharge loads[J]. Chinese Journal of Geotechnical Engineering, 2010, 32(Supp1): 128-134. [李忠诚,梁志荣. 大面积堆载土体侧移模式及对邻近被动桩影响分析[J]. 岩土工程学报, 2010, 32(增刊1): 128-134.] |
| [7] |
Wu Qiong.Behavior of vertical loaded pile influenced by side surcharge[D].Shanghai:Shanghai Jiaotong University,2011. 吴琼.侧向堆载作用下竖向受荷桩的受力性状[D].上海:上海交通大学,2011. |
| [8] |
Li Zhiwei. Study of influence of surcharge load on lateral displacement of bridge piled foundation in soft ground[J]. Rock and Soil Mechanics, 2013, 34(12): 3594-3600. [李志伟. 软土地基邻近堆载对桥梁桩基偏位的影响研究[J]. 岩土力学, 2013, 34(12): 3594-3600. DOI:10.16285/j.rsm.2013.12.033] |
| [9] |
Peng Longshi,Pang Linxiang. Numerical analysis of adjacent bridge piles influenced by surcharge loads on soft foundation[J]. Journal of Highway and Transportation Research and Development, 2014, 31(12): 67-72. [彭龙仕,庞林祥. 软基堆载对临近桥桩作用的数值分析[J]. 公路交通科技, 2014, 31(12): 67-72. DOI:10.3969/j.issn.1002-0268.2014.12.011] |
| [10] |
Jiang Jiwei,Fu Shaolan,Pan Jiajun,et al. Numerical analysis of new embankment filling on existing pile group foundation in deep soft soil area[J]. Journal of Yangtze River Scientific Institute, 2016, 34(9): 79-85. [江洎洧,付少兰,潘家军,等. 围堤填筑对深厚软土地基既有群桩基础的影响研究[J]. 长江科学院院报, 2016, 34(9): 79-85. DOI:10.11988/ckyyb.20160616] |
| [11] |
Feng Jun,Zhang Junyun,Zhu Ming,et al. Characteristic study of horizontal bearing capacity and pile group effect coefficient of laterally loaded high pile group foundation for bridge in soft soil[J]. Rock and Soil Mechanics, 2016, 37(Supp2): 94-104. [冯君,张俊云,朱明,等. 软土地层高承台桥梁群桩基础横向承载特性研究[J]. 岩土力学, 2016, 37(增刊2): 94-104. DOI:10.16285/j.rsm.2016.S2.011] |
| [12] |
Wang Qi.Research on stress and deformation of piles under coal loading in soft soil area[D].Hangzhou:Zhejiang University,2013. 王起.软土地基堆煤荷载下桩基变形与受力分析研究[D].杭州:浙江大学,2013. |
| [13] |
Zhao Xiaobo.Study on mechanical properties of the composite foundation under lateral soil movement due to heaped loads[D].Tangshan:Hebei United University,2013. 赵晓波.堆载作用下临近复合地基的力学性状研究[D].唐山:河北联合大学,2013. |
| [14] |
Qiao Jingsheng,Zhao Xiaobo,Yang Xiumin,et al. Numerical analysis of the CFG piles composite foundation influenced by lateral soil movement due to heap loads[J]. Journal of Tangshan College, 2012, 3(5): 53-56. [乔京生,赵晓波,杨秀敏,等. 堆载作用对临近CFG桩复合地基影响的数值模拟研究[J]. 唐山学院学报, 2012, 3(5): 53-56. DOI:10.16160/j.cnki.tsxyxb.2012.03.025] |
| [15] |
Huang Juexin.Analysis of adjacent surcharge impact to the internal force and displacement of high-speed railway bridge pile foundation in deep soft soil[D]Changsha:Central South University,2014 黄珏鑫.邻近堆载对深厚软土地区高速铁路桥梁桩基内力与变位影响分析[D].长沙:中南大学,2014. |
| [16] |
中华人民共和国交通运输部.公路桥涵设计通用规范:JTGD 60—2015[S].北京:人民交通出版社,2015.
|
| [17] |
Itasca Consulting Group,Inc.FLAC3D (fast Lagrangian analysis of continua in 3 dimensions) user manuals(Version 3.0)[R].Minnesota:Itasca Consulting Group,Inc,2005.
|
| [18] |
中国建筑科学研究院.建筑桩基技术规:JGJ 94—2008[S].北京:中国建筑工业出版社,2008.
|
| [19] |
中华人民共和国建设部.建筑地基基础设计规范:GB 50007—2011[S].北京:中国建筑工业出版社,2011.
|
| [20] |
中华人民共和国交通部.公路桥涵地基与基础设计规范:JTGD 63—2007[S].北京:人民交通出版社,2007.
|
2020, Vol. 52













