2. 兰州理工大学 甘肃省减震隔震国际科技合作基地,甘肃 兰州 730050
2. International Research Base on Seismic Mitigation and Isolation of Gansu Province, Lanzhou Univ. of Technol., Lanzhou 730050, China
建筑行业为国计民生做出重大贡献的同时,消耗了大量的资源和能源,也给社会环境带来了巨大压力,为此,国家大力发展预制装配式建筑。隔震技术能够有效提高结构的抗震性能和抗灾能力,已在装配式建筑中得到了应用且经历地震的考验[1-2]。
国内外学者针对预制装配式混凝土隔震结构进行了探索和研究。Tiong等[3]对一个两层装配式框−剪隔震结构的抗震性能进行了非线性分析;卫杰彬[4]、谭平[5-6]等对一个高层装配式层间隔震结构进行了动力弹塑性时程分析,研究了高层装配式层间隔震结构在超大地震下的损伤机理和失效破坏模式,为装配式高层结构层间隔震技术的发展提供了理论依据,并针对隔震层框架节点提出了一种新型连接构造方式,利用缩尺模型试验对其抗震性能进行了检验;王维[7]开展了预制装配式隔震剪力墙结构的振动台试验研究,考察高阻尼隔震支座对提高预制装配式隔震剪力墙结构抗震性能的作用,并运用IDA方法进行结构地震易损性分析及抗倒塌性能研究,提出了直接基于位移的预制装配式隔震剪力墙结构的设计方法。
对于基础隔震结构,隔震层是上部结构的基础,其结构整体性要求较高,隔震层框架节点连接的可靠性直接影响着隔震层的整体性和抗震性能。本文针对预制装配式混凝土(PC)基础隔震结构的隔震层部分,对隔震层梁底纵筋的焊接连接方式进行了改进并开展拉拔试验,提出了一种框架节点连接方式。利用ABAQUS建立了新型预制装配式隔震层框架节点和传统现浇节点的有限元模型,并进行抗震性能模拟分析,根据两类节点的力学性能差异对预制装配式隔震层框架节点的连接构造进行改进,从而得到结构整体性更优的节点连接方式。
1 纵筋连接方式及性能试验 1.1 纵筋连接方式及加载设备预制混凝土构件的拼接,其本质上是预制构件之间钢筋的连接和新旧混凝土的粘结。预制构件中钢筋嵌固在混凝土中,传统的钢套筒连接技术不再适用。为此,国内外学者提出了多种钢筋连接技术,如套筒灌浆连接、浆锚搭接连接、套筒挤压连接技术等[8-9]。焊接作为钢筋连接的常用方法之一,具有连接质量高、整体性好、节约钢材等优点,但焊接时钢筋再次受热,容易出现截面缩小、局部脆裂等问题。常见的钢筋搭接焊接、钢板连接焊接中普遍存在拉力偏心现象,导致焊接区域或连接钢板发生弯折变形,这极易造成拼接区域混凝土过早开裂、保护层剥离等现象,直接影响结构的完整性。于是,本文提出了在连接钢板上开设凹槽后,与钢筋先搭接,再焊接固定的连接方式。考虑到钢筋再次受热后,在大变形等极端条件下焊接区域易发生脆性破坏,结构抗连续倒塌能力降低等[10]问题,本文又提出了利用钢套筒先将钢筋端头进行保护,再与开槽钢板焊接的连接构造方式。为了检验上述钢筋连接方式的抗拉性能和连接段的变形情况,进行了8组钢筋连接试件的拉拔试验,钢筋试件的拉拔试验装置如图1所示。具体的钢筋连接构造见表1。
| 表1 钢筋连接方式及破坏形态 Tab. 1 Connection modes and failure modes of reinforcement bars |
![]() |
![]() |
| 图1 试验加载装置 Fig. 1 Test setup |
1.2 试验材料
钢筋选用HRB400级螺纹钢,直径d=16 mm,试样总长度取500 mm;连接钢板选用Q345B钢材,长×宽×高为200 mm×50 mm×20 mm,方式5、方式7(表1)中在连接钢板上与钢筋、钢套筒的搭接位置处开设圆弧形凹槽,焊接时钢筋的中轴线与钢板上表面恰好重合;选用BB416SK钢筋直螺纹套筒;单面焊接时焊接长度取10d,双面焊接时焊接长度取5d。
1.3 试验结果各组试件的破坏形态如表1所示,试验测得各连接试件的屈服强度和抗拉强度见表2。由表1、2可知,采用搭接焊接连接(方式2~5)时,钢筋试件的抗拉强度与通长钢筋(方式1)接近;钢筋与钢筋搭接焊接(方式2、3)时,焊接段出现了明显的弯折变形,单面焊接时连接区域较长,弯折更明显;采用钢套筒焊接(方式6、7)或连接(方式8)时,由于端头钢筋进行了滚轧螺纹处理,钢筋的有效截面减小,导致其屈服强度和抗拉强度较通长钢筋有所降低,但相差较小;采用钢板搭接焊接(方式4、6)时,钢板发生了明显的弯折变形,偏心越大,弯折越显著;在钢板上开设凹槽后再进行搭接焊接(方式5、7)时,由于钢筋与钢板之间的轴向偏心减小,连接钢板的弯折变形显著减小。
| 表2 试件抗拉性能 Tab. 2 Tensile properties of specimens |
![]() |
综上可知,连接钢板上开设凹槽后,钢筋与钢板之间的轴向偏心减小、接触面积增大,连接试件的抗拉能力与通长钢筋接近,连接钢板的弯折变形较小;钢筋端头设钢套筒保护后,焊接仅发生在钢套筒与钢板之间,对受力钢筋的影响较小,最大程度地保留了钢筋的原有属性,但抗拉强度略有降低。
2 隔震层框架节点连接构造的提出本文针对PC基础隔震结构的隔震层部分,提出了一种新的框架节点连接构造方式,如图2所示。隔震层梁采用预制叠合梁,支墩截面尺寸通常较大,但高度较小,为提高隔震层的整体性,支墩、上柱及梁叠合层进行整体浇筑。隔震建筑中隔震层必须具备较高的承载能力和刚度储备,在地震等外荷载作用下,即使上部结构发生塑性破坏甚至倒塌,隔震层仍处于弹性状态,所以隔震层叠合梁、支墩的截面尺寸和配筋通常高于上部框架梁、柱构件。新型装配节点中梁底纵筋的连接段设在节点核心区,完全避开了梁端塑性铰区域,故纵筋连接采用本文提出的连接方式5,连接钢板上与钢筋搭接区域开设椭圆形凹槽,梁端外伸钢筋与凹槽搭接并焊接固定;钢板中心开设圆孔,方便混凝土浇筑。装配时,预制梁端部嵌入支墩边缘,嵌入深度约为支墩混凝土的保护层厚度。基于上述构造和设计主要有以下作用:1)利用整浇大体积支墩的完整性来嵌固、约束预制梁端部;2)利用柱的轴向压力抑制、减小连接钢板发生弯曲变形;3)保证了梁端塑性铰区域内混凝土的连续性和完整性;4)核心区焊接与锚固双重作用加强了纵筋的连接性能。
![]() |
| 图2 装配节点几何尺寸及构造 Fig. 2 Dimensions and details of assembly joint |
2.1 有限元模型建立
利用ABAQUS分别建立传统现浇隔震层框架节点(简称“现浇节点”,记为RC)和预制装配式隔震层框架节点(简称“装配节点”,记为PC)的有限元分析模型。叠合梁采用C30混凝土,上柱、支墩采用C40混凝土;叠合梁、上柱及支墩中的受力纵筋均采用HRB400钢筋,箍筋采用HPB300钢筋。预制装配式隔震层框架节点的截面尺寸、配筋及构造见图2。
混凝土、钢板采用C3D8R实体单元,钢筋采用T3D2线单元,使用嵌入区域约束(embedded region)功能将钢骨架嵌入混凝土单元,不考虑钢筋、钢板与混凝土之间的粘结滑移。与现浇节点相比,装配节点中新旧混凝土之间存在薄弱粘结面,建模时,需考虑新旧混凝土界面上可能发生剥离破坏时的非线性性能。在ABAQUS中采用Spring2弹簧定义新旧混凝土界面上的非线性界面力与相对位移的关系,通过在新旧混凝土界面上相同位置的两节点之间设置3个弹簧来分别模拟法向和两个切向的粘结性能[11-12]。装配框架节点的有限元模型如图3所示。
![]() |
| 图3 装配节点有限元模型 Fig. 3 Finite element model of assembly joint |
2.2 钢材材料属性
钢筋材料采用Qu[13]改进的Clough钢筋滞回本构模型,如图4所示。
![]() |
| 图4 钢筋滞回模型 Fig. 4 Hysteretic model of reinforcement |
该模型能较好地考虑钢筋加载–卸载–反向加载过程产生的包辛格效应,其可行性已经得到了验证[14]。方自虎等[15]根据Qu改进的Clough模型编写了钢筋材料本构的子程序文件,可直接在ABAQUS中安装、调用。钢板采用双折线形式的随动强化模型,强化段模量取弹性模量的1%,泊松比取0.3。梁中部分受力纵筋的屈服、抗拉强度见表2,箍筋及上柱中受力纵筋的抗拉强度参考文献[16]试验数据。支墩中受力纵筋及箍筋的直径较大,连接钢板也始终处于弹性状态,故支墩中纵筋、箍筋及连接钢板的抗拉强度取值参考《混凝土结构设计规范》(GB50010—2010)[17]中推荐的标准值。
2.3 混凝土损伤塑性模型混凝土材料选用混凝土损伤塑性模型(CDP模型),CDP模型适用于单调加载和循环加载作用下混凝土结构和构件的非线性分析[18]。混凝土材料的本构关系采用文献[17]中推荐的应力–应变关系,其中混凝土单轴受拉、压损伤演化参数与CDP模型中塑性损伤因子的含义不同,不能直接用于CDP模型,根据能量等价原理可建立二者之间的转化关系[19]。本文所用C30、C40混凝土的抗压强度参考文献[16],C30、C40混凝土的CDP模型参数如图5所示,CDP模型中其他参数的取值见表3[20]。混凝土、钢筋桁架单元尺寸取50 mm,连接钢板的单元尺寸取20 mm。
![]() |
| 图5 C30、C40混凝土的CDP模型参数 Fig. 5 CDP model parameters of C30 and C40 |
| 表3 CDP模型参数经验取值 Tab. 3 Parameter’s values of CDP model in experience |
![]() |
2.4 模型加载方案
上柱的设计轴压比取0.3,柱顶施加轴向集中力荷载,水平往复荷载采用位移控制方法施加,选用柱端加载方式,以2、4、6、
![]() |
| 图6 加载方案 Fig. 6 Loading scheme |
3 结果分析 3.1 破坏模式
低周往复荷载下混凝土的等效塑性应变及拉、压损伤状态如图7所示。由图7可见:混凝土的塑性损伤均集中在梁根部,且现浇节点的塑性损伤程度明显大于装配节点,上柱和支墩混凝土均未发生塑性损伤,符合强柱弱梁、强节点弱构件的抗震设计要求;两类节点的受压损伤主要集中在梁端约1/3梁长度区域内,受拉损伤分布较广,主要发生在整个梁上、梁与支墩的交接区域以及柱底区域。
![]() |
| 图7 节点损伤状态 Fig. 7 Damage state of joints |
3.2 滞回曲线
现浇节点与装配节点的滞回曲线如图8所示。由图8可见:加载位移较小时,滞回曲线基本呈直线,残余位移较小;随着水平加载幅值继续增大,滞回曲线逐渐呈梭形,残余位移也逐渐增大。现浇节点滞回曲线较饱满,加载后期装配节点滞回曲线捏缩较显著。
![]() |
| 图8 节点滞回曲线 Fig. 8 Hysteretic curves of joints |
3.3 骨架曲线
两类节点的骨架曲线如图9所示。采用等效弹塑性能量法确定骨架曲线的屈服点,取骨架曲线下降段对应峰值荷载85%的点作为极限荷载点,骨架曲线的特征参数汇总见表4(仅以正向为例)。由图9和表4可知:现浇节点的峰值荷载高于装配节点;达到峰值荷载后,现浇节点的承载力下降比较迅速,装配节点的承载力下降较为缓慢,装配节点的延性系数较大,说明装配节点的变形能力较强。
![]() |
| 图9 节点骨架曲线 Fig. 9 Skeleton curves of joints |
| 表4 骨架曲线的特征参数 Tab. 4 Characteristic parameters of skeleton curves |
![]() |
3.4 刚度退化
按照文献[21]计算得到试件割线刚度Km与加载位移Δ的关系曲线,如图10所示。由图10可知:随加载位移的增大,两类节点的刚度均逐渐降低;屈服前,节点的刚度退化均比较明显,且现浇节点的刚度大于装配节点;屈服后,节点的刚度退化均相对缓慢,且装配节点的刚度逐渐大于现浇节点。
![]() |
| 图10 节点刚度退化曲线 Fig. 10 Stiffness degradation curves of joints |
3.5 耗能性能
按照文献[21]计算得到各节点的能量耗散系数E曲线,如图11所示。由图11可知:随着加载位移的增大,各节点的耗能呈增长趋势;加载前期,两类节点的耗能能力相当,变形小,耗能也少;加载后期,变形较大,耗能显著增加,且现浇节点的耗能能力逐渐大于装配节点,这是因为装配节点中新旧混凝土连接位置过早开裂,节点的塑性发展主要集中在连接位置处,塑性发展区域较小,消耗的能量相对较少;而现浇节点的塑性铰出现在梁端,塑性铰分布在一定的长度范围内,所以消耗的能量相对较多。
![]() |
| 图11 节点能量耗散系数曲线 Fig. 11 Energy dissipation coefficient curves of joints |
4 节点改进及性能分析
与现浇节点相比,装配节点的承载力和刚度偏低,说明装配节点的整体性较弱。主要原因是新旧混凝土粘结面过早开裂,导致装配节点的塑性发展区域集中。因此,必须控制新旧混凝土界面之间的相对变形,加强新旧混凝土之间连接的整体性。钢筋混凝土结构中,混凝土对钢筋有极强的握裹、锚固作用,因此,可利用带肋钢筋良好的抗拉、锚固性能,以及金属的大弹模特性,在新旧混凝土之间贯通锚固钢筋来约束新旧混凝土之间发生相对位移,以此来提高新旧混凝土的连接性能。由表1、2可知,采用钢套筒连接(方式8)时,施工操作简单,钢筋试件的抗拉性能可靠。此外,锚固钢筋还可提高新旧混凝土粘结面上的抗剪承载能力。
在原隔震节点设计的基础上改进如下:1)梁中受力纵筋的连接方式不变,预制梁构件制作时,在其端部预埋锚固钢筋和钢套筒,钢套筒的一端与梁中预埋的锚固钢筋连接,另一端用于连接支墩中的锚固钢筋。2)施工时,待预制梁构件吊装就位、支墩钢筋骨架吊装完成后,再将支墩中的锚固钢筋与预留钢套筒进行连接。3)通过上述方法对装配节点的连接构造进行改进,从而得到一种改进的预制装配式隔震层框架节点连接构造方式。
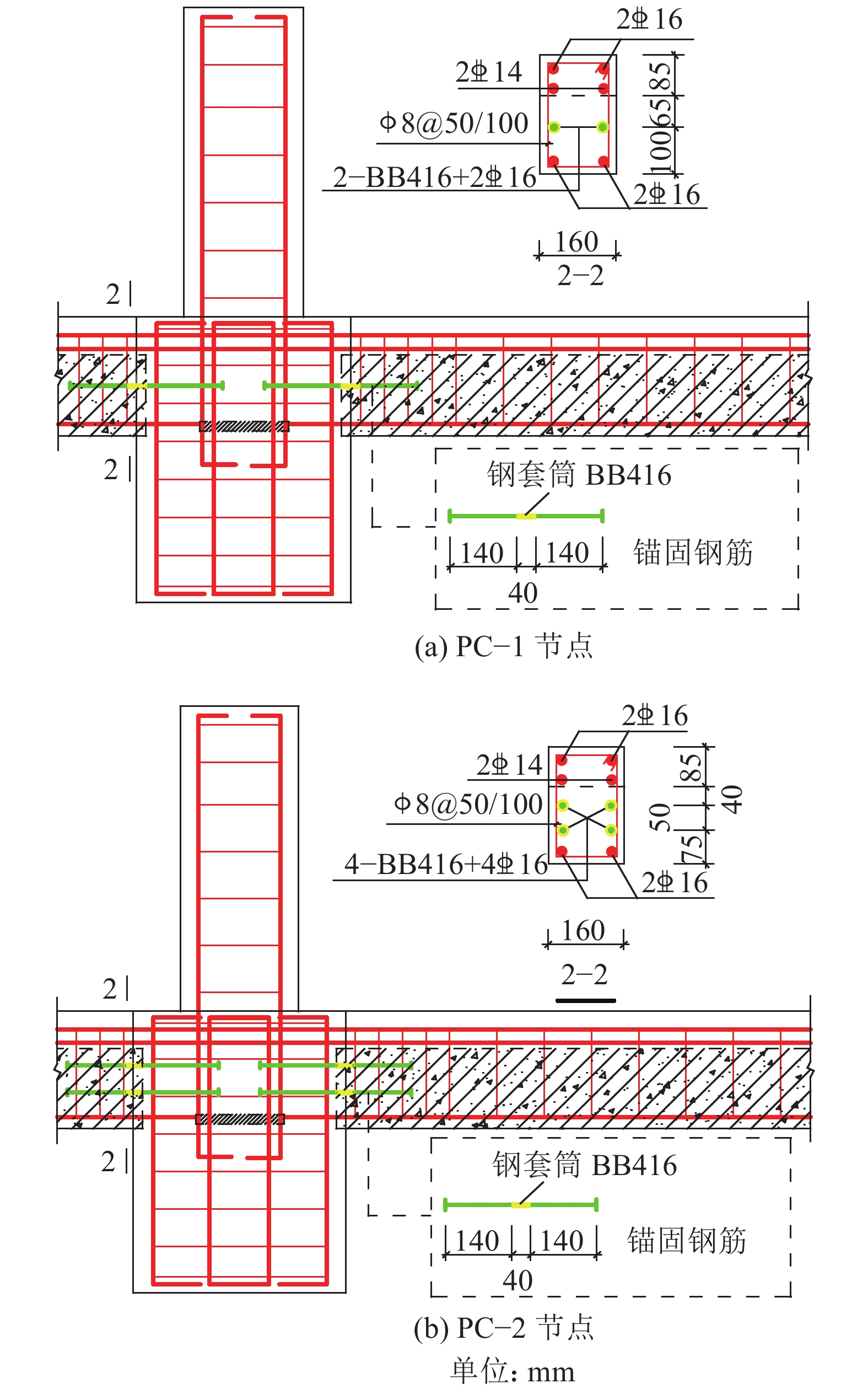
锚固钢筋的数量和直径对新旧混凝土的约束作用不同。本文锚固钢筋的直径取16 mm,仅考虑锚固钢筋的数量变化,设计如图12所示的两种锚固构造方式,并建立PC−1节点和PC−2节点的有限元分析模型。PC−1中设置了2根锚固钢筋,PC−2中设置了4根锚固钢筋,为使锚固钢筋的拉力尽量分布均匀,锚固钢筋沿预制梁高均匀布置,具体布置方式及连接构造如图12所示。
![]() |
| 图12 改进的装配节点连接构造 Fig. 12 Details of improved assembly joints |
按照第2.4节中的加载方案,继续对PC−1、PC−2节点施加低周往复荷载,进行抗震性能分析。
4.1 破坏模式低周往复荷载作用下,PC−1、PC−2节点混凝土的等效塑性应变及拉、压损伤状态如图13所示。由图13可知:与PC、RC节点相比,PC−1、PC−2节点中混凝土的塑性损伤范围向梁跨中方向转移,主要集中在梁端锚固钢筋的分布区域,且PC−2节点中混凝土的塑性损伤程度明显大于PC−1节点,上柱和支墩混凝土均未发生塑性损伤,梁–支墩连接区域混凝土拉、压损伤加剧。
![]() |
| 图13 PC–1、PC–2节点损伤状态 Fig. 13 Damage state of PC–1 joint and PC–2 joint |
4.2 滞回曲线
各节点滞回曲线的对比结果如图14所示。由图14可知:随着梁端锚固钢筋数量的增加,装配节点滞回环的捏拢效应越明显;与RC节点相比,PC−1、PC−2节点滞回环的捏拢效应更显著,说明消耗的能量减少。这是因为增设锚固钢筋后梁端受力纵筋的塑性发展受到约束,导致其塑性耗能减少。
![]() |
| 图14 节点滞回曲线对比 Fig. 14 Comparison of hysteretic curves of joints |
4.3 骨架曲线
各节点的骨架曲线如图15所示。由图15可知:PC−2、PC−1、RC和PC节点的骨架曲线依次呈现包络状态,说明PC、RC、PC−1和PC−2节点的承载能力依次增大;梁端设置锚固钢筋后,相当于提高了梁端局部区域的配筋率,导致节点的承载能力增大。从图15(b)可以看出,在梁端增设2根锚固钢筋后,装配节点的承载能力已经超过现浇节点。所以,在梁端增设锚固钢筋可有效改善装配节点的承载能力。
![]() |
| 图15 节点骨架曲线对比 Fig. 15 Comparison of skeleton curves of joints |
4.4 刚度曲线
各个节点的割线刚度Km曲线如图16所示。由图16可知,PC、RC、PC−1和PC−2节点的初始刚度依次增大,说明其整体性依次增强。这是因为梁端增设锚固钢筋后,局部刚度增大,导致节点的整体刚度增大。从图16(b)可以看出,梁端设置2根锚固钢筋时,装配节点的刚度已经超过现浇节点。所以,在梁端增设锚固钢筋可改善装配节点的刚度特性,提高装配节点的整体性。
![]() |
| 图16 节点刚度退化曲线对比 Fig. 16 Comparison of stiffness degradation curves of joints |
4.5 耗能性能
各节点的能量耗散系数E曲线如图17所示。由图17可见,PC−1、PC−2节点的能量耗散系数均小于PC节点,也小于RC节点,说明PC−1、PC−2节点的耗能能力低于PC节点,更低于RC节点。这是因为锚固钢筋直径较大且位于预制梁中部,加载过程中锚固钢筋未发生屈服,锚固钢筋在约束新旧混凝土剥离裂缝扩张的同时,也阻碍了剥离裂缝位置处梁底部和顶部受力纵筋的拉伸变形,从而减小了受力纵筋的塑性变形,导致装配节点的滞回耗能能力较低。
![]() |
| 图17 节点能量耗散系数曲线对比 Fig. 17 Comparison of energy dissipation coefficient curves of joints |
综上可知,梁端增设锚固构造钢筋后,装配节点的承载能力、刚度、变形能力明显增大,但耗能能力降低。所以,改进的预制装配式隔震层框架节点具有良好的结构整体性,可用于实际隔震工程。
5 结 论通过对钢筋连接试件开展拉拔试验和对隔震层框架节点进行抗震性能分析,得出以下结论:
1)采用钢板连接时,钢筋试件的抗拉能力与通长钢筋接近,在钢板上开设凹槽再焊接固定可减小连接钢板的平面外弯曲变形,防止连接区域局部混凝土过早损伤。
2)与现浇隔震层框架节点相比,预制装配式隔震层框架节点的承载能力、刚度和耗能能力偏低,但变形能力较强。
3)预制梁端增设锚固钢筋后,梁端局部区域的配筋增大,致使预制装配式隔震层框架节点的承载能力、刚度和变形能力提高,但较强的配筋限制了梁中受力纵筋的塑性发展,因此耗能能力降低。
4)改进的预制装配式隔震层框架节点的承载能力、刚度和变形能力均强于现浇隔震层框架节点,说明其整体性能较好,可用于实际工程。
| [1] |
Battaini M,Marioni A.Base isolation of allied join force Command Headquarters Naples[C]//10th World Conference on Seismic Isolation,Energy Dissipation and Active Vibrations Control of Structures.Turkey:Istanbul,2007.
|
| [2] |
Ghosh S K,Cleland N. Observations from the February 27,2010,earthquake in Chile[J]. PCI Journal, 2012, 57(1): 52-75. DOI:10.15554/pcij.01012012.52.75 |
| [3] |
Tiong P L,Adnan A,Rahman A B,et al. Seismic performance of low-ductility precast wall structure with base isolation[J]. International Journal of Engineering,Transactions B(Applications), 2013, 26(2): 153-162. |
| [4] |
Wei Jiebin,Tan Ping,Kuang Zhen,et al. Research on seismic performance and damage failure mode of a high-rise prefabricated inter-story isolated structure[J]. China Civil Engineering Journal, 2012, 45(Supp1): 171-176. [卫杰彬,谭平,匡珍,等. 高层装配式层间隔震结构的抗震性能及破坏失效模式研究[J]. 土木工程学报, 2012, 45(增刊1): 171-176.] |
| [5] |
Tan Ping,Kuang Zhen,Wei Jiebin,et al. Experimental study and analysis of assembled isolation concrete connection[J]. Journal of Guangzhou University(Natural Science Edition), 2013, 12(4): 32-37. [谭平,匡珍,卫杰斌,等. 装配式隔震节点的试验研究与分析[J]. 广州大学学报(自然科学版), 2013, 12(4): 32-37.] |
| [6] |
Tan Ping,Li Yang,Kuang Zhen,et al. Seismic behavior of isolation connection in assembled seismic isolation structure[J]. China Civil Engineering Journal, 2015, 48(2): 10-17. [谭平,李洋,匡珍,等. 装配式隔震结构中隔震节点抗震性能研究[J]. 土木工程学报, 2015, 48(2): 10-17.] |
| [7] |
Wang Wei.Theoretical and experimental research on precast concrete shear wall isolation structure[D].Nanjing:Southeast University,2016. 王维.装配式隔震剪力墙结构理论分析与振动台试验研究[D].南京:东南大学,2016. |
| [8] |
Peng Y Y,Qian J R,Wang Y H. Cyclic performance of precast concrete shear walls with a mortar–sleeve connection for longitudinal steel bars[J]. Materials and Structures, 2016, 49(6): 2455-2469. DOI:10.1617/s11527-015-0660-0 |
| [9] |
Xue Weichen. Progress of studies and applications of precast concrete frame structure systems[J]. Industrial Construction, 2002, 32(11): 47-50. [薛伟辰. 预制混凝土框架结构体系研究与应用进展[J]. 工业建筑, 2002, 32(11): 47-50. DOI:10.3321/j.issn:1000-8993.2002.11.017] |
| [10] |
Qian K,Li B. Performance of precast concrete substructures with dry connections to resist progressive collapse[J]. Journal of Performance of Constructed Facilities, 2018, 32(2): 04018005. DOI:10.1061/(ASCE)CF.1943-5509.0001147 |
| [11] |
Zhao Zuozhou,Zhou Jian,Hou Jianqun,et al. Finite element analysis of shear walls with precast concrete hollow moulds and splice rebar connection between the upper and lower floors[J]. Engineering Mechanics, 2017(1): 129-141. [赵作周,周剑,侯建群,等. 上下层插筋连接预制混凝土空心模剪力墙有限元分析[J]. 工程力学, 2017(1): 129-141.] |
| [12] |
Zhang Rui.Experimental and finite element analysis on the assembled monolithic reinforced concrete frame structure[D].Changsha:Hunan University,2015. 张锐.装配整体式混凝土框架结构受力性能试验与有限元分析[D].长沙:湖南大学,2015. |
| [13] |
Qu Z.Predicting nonlinear response of an RC bridge pier subject to shake table motions[C]//Proceedings of 9th International Conference on Urban Earthquake Engineering(9CUEE).Tokyo:Tokyo Institute of Technology,2012:1717–1724.
|
| [14] |
Wang Xunliu,Lu Xinzheng,Ye Lieping. Numerical simulation for the hysteresis behavior of RC columns under cyclic loads[J]. Engineering Mechanics, 2007, 24(12): 76-81. [汪训流,陆新征,叶列平. 往复荷载下钢筋混凝土柱受力性能的数值模拟[J]. 工程力学, 2007, 24(12): 76-81. DOI:10.3969/j.issn.1000-4750.2007.12.014] |
| [15] |
Fang Zihu,Zhen Yi,Li Xiangpeng. Steel hysteretic model of reinforced concrete structures[J]. Engineering Journal of Wuhan University, 2018, 51(7): 613-619. [方自虎,甄翌,李向鹏. 钢筋混凝土结构的钢筋滞回模型[J]. 武汉大学学报(工学版), 2018, 51(7): 613-619.] |
| [16] |
Du Yongfeng,Li Hu,Han Bo,et al. Analysis of influential factors on the seismic behavior of PC columns connected by steel−concrete composite joints[J]. Engineering Mechanics, 2020, 37(6): 110-121. [杜永峰,李虎,韩博,等. 钢–混凝土组合节点连接PC柱抗震性能影响参数分析[J]. 工程力学, 2020, 37(6): 110-121.] |
| [17] |
中华人民共和国住房和城乡建设部.混凝土结构设计规范:GB50010—2010[S].北京:中国建筑工业出版社,2011.
|
| [18] |
Nie Jianguo,Wang Yuhang. Comparison study of constitutive model of concrete in ABAQUS static analysis of structures[J]. Engineering Mechanics, 2013, 30(4): 59-67. [聂建国,王宇航. ABAQUS中混凝土本构模型用于模拟结构静力行为的比较研究[J]. 工程力学, 2013, 30(4): 59-67. DOI:10.6052/j.issn.1000-4750.2011.07.0420] |
| [19] |
Cui Qinshu,Jiang Jinjie. Analysis of the seismic behavior of top story joints with Z-shaped columns in the RC frame base on ABAQUS[J]. Journal of ZheJiang University of Technology, 2016, 44(3): 310-315. [崔钦淑,蒋金杰. 基于ABAQUS的RC Z形柱框架顶层节点抗震性能分析[J]. 浙江工业大学学报, 2016, 44(3): 310-315. DOI:10.3969/j.issn.1006-4303.2016.03.015] |
| [20] |
Zhao Guifeng,Li Yaoliang,Zhang Meng,et al. Numerical simulation research on hysteresis performance of corroded reinforced concrete frame columns[J]. World Earthquake Engineering, 2014, 30(2): 71-79. [赵桂峰,李瑶亮,张猛,等. 锈蚀钢筋混凝土框架柱滞回性能的数值模拟研究[J]. 世界地震工程, 2014, 30(2): 71-79.] |
| [21] |
中华人民共和国住房和城乡建设部.建筑抗震试验规程:JGJ/T 101—2015[S].北京:中国建筑工业出版社,2015.
|
2021, Vol. 53























